top of page
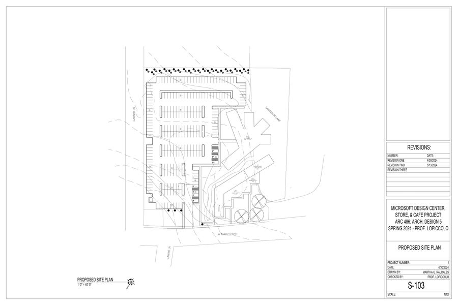
MICROSOFT TECHNOLOGY DESIGN CENTER, STORE, AND CAFÉ PROJECT
NARRATIVE: YOU HAVE BEEN CONTRACTED AS THE ARCHITECT FOR A TECHNOLOGY DESIGN OFFICE CENTER, STORE, AND CAFÉ FOR A COMPANY SUCH AS GOOGLE / MICROSOFT / APPLE OR SIMILAR OTHER. THE GOAL FOR THIS PROJECT IS TO DESIGN AN INNOVATIVE SITE-SPECIFIC PROJECT WITH A CLEAR CONCEPT, THAT HAS A GREEN ROOF CAFÉ AND A MINIMUM OF TWO OTHER GREEN BUILDING/SITE FEATURES OF YOUR CHOICE. YOUR CLIENT IS ALSO SEEKING A MODERN BUILDING THAT HAS INTERACTIVE COMMUNITY SPACES WHILE MAINTAINING COMPANY SPACES FOR THEIR EMPLOYEES TO WORK IN TEAMS AND INDIVIDUALLY.
PRECEDENT RESEARCH
SITE ANALYSIS, PROGRAM, & BASIC CODE REVIEW
THREE SITE-SPECIFIC CONCEPT DRAWINGS
FINAL PRESENTATION DRAWINGS
FINAL SITE PLAN SET
FINAL CONSTRUCTION DRAWINGS
bottom of page






















































